Como projetar um estacionamento?

O design do estacionamento são uma parte importante na arquitetura de edifícios
A construção e o design do estacionamento são uma parte importante na arquitetura de edifícios.

Os estacionamentos são áreas destinadas ao estacionamento de veículos. Eles variam em tamanho, localização e design. Um estacionamento pode ser colocado em áreas pequenas ou grandes, dependendo da estrutura que atende. As casas precisam de apenas algumas vagas de estacionamento ou de uma garagem, enquanto shoppings, escritórios, estádios ou corredores podem precisar de estacionamentos que possam acomodar milhares de veículos diferentes. As pessoas precisam desses espaços onde possam deixar seus veículos, para que possam atender às suas necessidades do dia a dia.

O projeto de um estacionamento depende de muitos fatores, como o tamanho, a finalidade e o número esperado de veículos que pode ser necessário acomodar. Os estacionamentos podem ou não cobrir mais área de terreno do que o prédio. Isso depende do projeto do edifício. Os proprietários de edifícios desejam que suas instalações sejam bem organizadas, atraentes e práticas.

Materiais de pavimentação permeáveis

Os estacionamentos podem ou não cobrir mais área de terreno do que o prédio
Os estacionamentos podem ou não cobrir mais área de terreno do que o prédio.

Existem normas para a construção, espaçamento e disposição dos estacionamentos. Os estacionamentos são geralmente feitos de asfalto. Outros são feitos de concreto e alguns são construídos com materiais de pavimentação permeáveis. A construção e o design do estacionamento são uma parte importante na arquitetura de edifícios. Se o estacionamento for negligenciado ou mal projetado, isso pode levar a problemas de manutenção desnecessários. Parques de estacionamento devidamente projetados podem se tornar uma parte muito atraente do edifício.

Aqui estão algumas dicas sobre como projetar um estacionamento.

  1. Compreenda o tipo de estacionamento a construir. O projeto do estacionamento é dividido em duas categorias, carga leve e carga pesada. Os estacionamentos para cargas leves atendem a veículos de 4 e 2 rodas. Os estacionamentos para cargas pesadas são para veículos maiores e mais pesados.
  2. Tenha um plano geral para o estacionamento. Considere detalhes importantes ao desenvolver um plano de estacionamento. A capacidade máxima de estacionamento que pode ser fornecida aos usuários e a segurança de seus clientes podem ser levadas em consideração. Traçar como os veículos irão navegar ao redor da área de estacionamento também deve fazer parte do plano. Portanto, quer se trate de um estacionamento ou de um estacionamento de aeroporto, certifique-se de ter um plano adequado para a área.
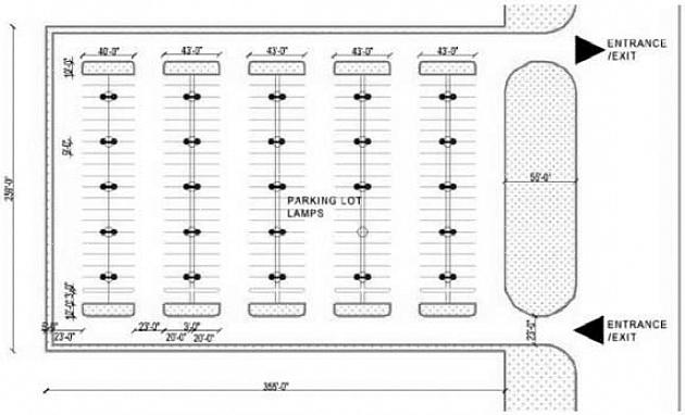
  3. Faça projetos que otimizem o espaço do estacionamento. Tirar o máximo proveito do seu espaço de estacionamento também é uma boa gestão do estacionamento. Usar áreas retangulares e tornar os lados longos paralelos cria mais espaço de estacionamento. Localizar vagas de estacionamento ao longo do perímetro do lote e usar faixas de tráfego para atender a duas fileiras são ótimas maneiras de otimizar o espaço de estacionamento.
  4. Planeje uma boa rota para o tráfego. Preste atenção especial ao fluxo de tráfego dentro da área de estacionamento. Projete com precisão o ângulo de estacionamento e as dimensões. Certifique-se de que os veículos que entram e saem podem circular corretamente para evitar colisões.
  5. Use marcações de estacionamento adequadas. Um dos elementos mais importantes em um estacionamento é a marcação. As marcações do estacionamento devem ser claras e simples de entender para que os clientes possam seguir facilmente as instruções.
  6. Projete um bom sistema de drenagem e preparação de solo de baixo grau. A drenagem de um estacionamento deve ser adequadamente projetada e instalada no início da construção. Uma boa preparação do solo de subleito tornará o estacionamento estável e resistente à quebra sob cargas pesadas.

Além de design e construção adequados, você também pode adicionar serviços como serviço de estacionamento com manobrista. O estacionamento noturno gratuito pode tornar sua área de estacionamento mais atraente para os clientes. Estacionamentos adequadamente projetados podem ser a parte mais interessante de um edifício. É por isso que é melhor saber projetar adequadamente um estacionamento. Se você precisar de ajuda com a criação de placas ou publicidade para o seu estacionamento, aulas de design online também podem ajudar nisso!

Artigos relacionados
  1. Como projetar uma península em uma cozinha?
  2. Como projetar uma livraria de varejo?
  3. Como exibir grupos de pinturas de impacto máximo?
  4. Como projetar uma tenda de chuveiro?
  5. Como projetar um quarto tropical?
  6. Como afligir móveis?
FacebookTwitterInstagramPinterestLinkedInGoogle+YoutubeRedditDribbbleBehanceGithubCodePenWhatsappEmail